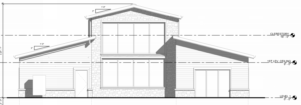
Mt. Rose Town homes
New construction, residential - Town home development
Architect: Steven S Cohen Architect
Location: Reno, NV
146 unit Town home development with community club house on a 16 acre site.
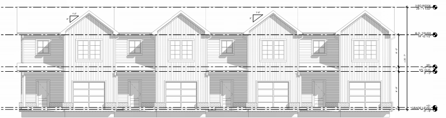
Architect: Steven S Cohen Architect
Location: Reno, NV
146 unit Town home development with community club house on a 16 acre site.