Stacks ADU
New construction, residential - ADU
Architect: Pro-Cal Design
Location: San Diego, CA
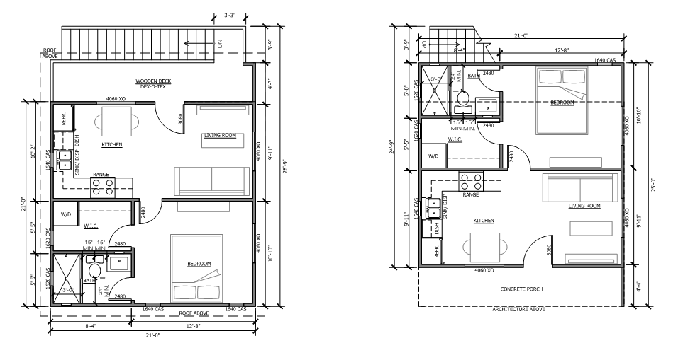
880sf, 2 story - 2 unit ADU. Compact design intended to place multiple units on a single property.
Architect: Pro-Cal Design
Location: San Diego, CA
880sf, 2 story - 2 unit ADU. Compact design intended to place multiple units on a single property.