Javier ADU
New construction, residential - ADU
Architect: Sulta Studio
Location: San Diego, CA
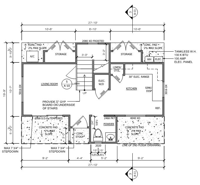
800 sf, 2 story ADU with conventional framing and Simpson Strong-Walls.
Architect: Sulta Studio
Location: San Diego, CA
800 sf, 2 story ADU with conventional framing and Simpson Strong-Walls.