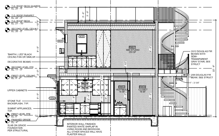
Lyceum ADU
New construction, residential - ADU
Architect: Michael Matthews Studio
Location: Los Angeles, CA
800 sf, 2 story construction with ADU and SB9 unit, including a large deck on the second floor and roof.
Architect: Michael Matthews Studio
Location: Los Angeles, CA
800 sf, 2 story construction with ADU and SB9 unit, including a large deck on the second floor and roof.